0371-67772727

  1. 首页
  2. > 产品知识
  3. > 破碎知识
  4. > 多缸液压圆锥破碎机的工作流程

多缸液压圆锥破碎机的工作流程

发布者:QY千亿国际机器 发布:2015-08-11 08:26:06 更新:2018-05-05 09:46:52
工厂直供,价格优惠享不停! 如果您想了解我们的产品,欢迎点击咨询 在线咨询了解产品

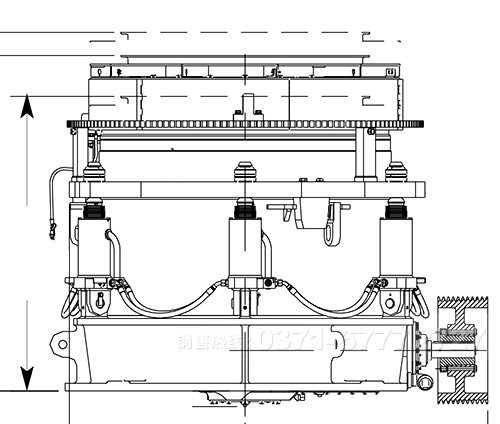
多缸液压圆锥破碎机是引进德国新技术而开发的具有世界先进水平的高能破碎设备。是通过采用粒间层压原理设计的特殊破碎腔及与之相匹配的转速,取代传统的单颗粒破碎原理,实现对物料的选择性破碎,破碎粒度均匀。以下为大家介绍多缸液压圆锥破碎机的工作流程。

多缸液压圆锥破碎机的价格

双向过铁释放液压缸能够让铁块顺利通过破碎腔,并且在发生过铁及瞬时闷车的情况下,能液压起顶,自动排料,避免了弹簧圆锥破碎机需要停机维护的操作。破碎腔体采用高性能非接触式迷宫密封件,提高了阻挡粉尘的可靠性,降低了铁污染和设备的磨损周期,加上机身携带的特殊稀油润滑系统,大大提高了设备使用寿命。

多缸液压圆锥破碎厂家

多缸液压圆锥破碎机工作时,是由电动机的旋转通过皮带轮或联轴器、多缸液压圆锥破碎机传动轴和圆锥破碎机圆锥部在偏心套的迫动下绕一周固定点作旋摆运动。从而使破碎圆锥的破碎壁时而靠近又时而离开固装在调整套上的轧臼壁表面,使矿石在破碎腔内不断受到冲击,挤压和弯曲作用而实现矿石的破碎。

多缸液压圆锥破碎机的工作流程

另外,设备的电动机通过伞齿轮驱动偏心套转动,使破碎锥作旋摆运动。破碎锥时而靠近又时而离开固定锥,完成破碎和排料。支撑套与架体连接处靠弹簧压紧,当破碎机内落入金属块等不可破碎物体时,弹簧即产生压缩变形,排出异物,实现保险,防止机器损坏。

多缸液压圆锥破碎机

在破碎过程中,如果遇到不可破碎物料进入内或其它因素,使机器超载时。设备此时,可实现保险系统实现保险,当排矿口增大。异物从多缸液压圆锥破碎机破碎腔排出,如异物卡在排矿石可使用清腔系统,使排矿继续增大,使异物排出完全多缸液压圆锥破碎机破碎腔。同时,机器的排矿口自动复位,恢复正常工作。

多缸液压圆锥破碎机的工作流程

在线留言助您快速投产收益

靠谱设备去哪买呢?强烈推荐您来QY千亿国际机器看一看,可在线留言预约来厂参观考察!

  • 免费获取环保政策分析、办厂手续、投资收益分析资料
  • 专车接送,工程师为您免费“量身定制”配套方案
  • 免费预约到厂考察,就近参观客户现场
7*24小时服务热线0371-67772727

今日已有15人留言享受优惠补贴

  • 3分钟前王先生留言:水泥厂熟料能破碎吗?推荐用什么机器?
  • 6分钟前姚女士留言:这款破碎机一小时产能多大?是用电的还是燃油的?
  • 12分钟前宋先生留言:50吨左右的制砂机大概什么价位?
  • 16分钟前柳先生留言:洗石英砂全套设备有哪些?
  • 26分钟前杨先生留言:建筑垃圾破碎机可以铁器分类吗?
  • 28分钟前肖先生留言:时产50吨的洗砂机有几个型号?
  • 31分钟前马女士留言:我想咨询一条生产线,你们能做吗?
  • 35分钟前龚先生留言:处理河石、花岗岩的500*750颚破机什么价位?
  • 39分钟前翟先生留言:石头碎沙设备和洗砂设备有吗?
  • 42分钟前蒋先生留言:硬岩颚式破碎机带不带电机?
返回顶部返回顶部